Technical Requirements
The Scottish building regulations set out both the technical requirements applicable to building work to protect the public interest and the functional requirements buildings are required to meet, including:
- Structure - how every building structure must be designed and constructed.
- Fire - considers a building in terms of fire safety.
- Environment - looks at contamination, risk of radon gas, drainage, elements of construction and ventilation.
- Safety - considers access to and within a building and ensures safe use of a building.
- Noise - aims to limit noise transmissions.
- Energy - considers energy usage and heat loss from a building.
- Sustainability - provides standards to enable higher quality buildings to be created.
The design is usually coordinated by the architect and submitted for building warrant approval, with supporting information from the building services engineer and the structural engineer. Although it is possible to start the detailed design for warrant before planning consent is granted, this carries a risk to the client organisation. More typically, the warrant application isn’t finalised until planning consent has been granted and any conditions of the consent addressed.
On receipt of the warrant application a building control officer is assigned to the project and carries out a detailed assessment of the drawings to ensure that the design fully complies with the current technical standards. A report is provided which details any additional information or clarification required from the design team. Once all items on the report have been addressed, the building warrant is issued. It remains valid for a period of three years from the date of issue, although an extension can be requested if the work has not been completed in that time.
A set of drawings and detailed specification is then developed by the team, suitable for the contractor to use for the construction of the project. Throughout these early stages of the project the cost consultants (quantity surveyors) will typically carry out cost checks to ensure that the design proposals continue to fall within the client’s budget. They will take the information prepared by the design team (production information) and use this to quantify all the works to be carried out, either by the preparation of a Bill of Quantities (B of Q) or a quantified pricing document and form of tender. This information is then issued to selected contractors along with a pre-construction information document, which is prepared by the principal designer and sets out all relevant health and safety information about the project. This should provide information on existing services, any asbestos risk or potential contamination of the site, as well as any other health and safety-related risks or welfare requirements the contractor will be responsible for managing.

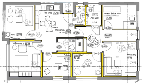
A key aspiration for the Children First North Strathclyde Bairns Hoose was that it should be designed to be as sustainable as possible. Options for new heating solutions were explored and tested and a new air source heat pump with underfloor heating promoted as the best option for the building. Not only was this a low carbon solution but it provided an opportunity to incorporate underfloor heating, saving space by removing the need for radiators and creating a warm floor on which children can play.
Acoustic Quality
Achieving a good level of privacy in the rooms within the Bairns Hoose was critical to the way in which the building functions, not only ensuring that conversations remain private and cannot be overheard between the rooms but also to ensure that the sound recordings which are made of the interviews with children are clear and audible and can be easily transcribed and used in evidence.
Sandy Brown provided acoustic design advice for the project, including an appraisal of the existing building’s fabric and setting and advice on the internal acoustics. The two key acoustic issues on the project were the provision of high standards of acoustic privacy and the control of reverberation, particularly in the main interview rooms.
The building was required to have a domestic feel to help provide a welcoming environment. This meant that high-performance acoustic doors, as might be seen in more typical institutional environments, were not appropriate. The acoustician supported the design development by reviewing the layout and suggesting some changes to the configuration to improve the sound insulation to the key rooms. They also provided guidance on the specification of internal partitions and the control of flanking sound, via the solum space below the room and the attic space above.
The control of reverberation, particularly in the main interview rooms, was also very important as these spaces are used for video calls to the courts and recordings to be used as evidence. Sandy Brown provided guidance on reverberation time criteria and advice on sound absorbing room finishes. This included the inclusion of sound absorbing timber wall panels, sound absorbing drapes and soft furnishings. They also reviewed the building services systems and provided advice on how these could be designed to help minimise noise levels in critical spaces.
Mechanical ventilation was required to most of the rooms because to maintain privacy it is not always possible to open windows. A new system was designed which incorporated heat recovery and also included cross-talk attenuation, to prevent voices transferring from one room to another through the ductwork. The acoustic consultants carried out an assessment of the building, measuring sound levels to understand and report on required soundproofing measures, a critical aspect of the technical design.
Video and Sound Recording for Interviews
The video and sound recording equipment installed in the house were provided by Reliance High Tech, chosen to undertake the works due to their track record of providing equipment to Police Scotland. The specification was based on knowledge Reliance had from similar installations in Police Scotland facilities. While the technical specification was approved by the Police Scotland IT lead and known to be identical to equipment used by them, the responsibility for the procurement and quality lay with Children First. Given the importance of equipment being compatible with Police Scotland laptops and systems, we recommend working closely with Police Scotland to ensure quality standards.
Cameras
High-quality cameras to record interviews are a critical component of the Scottish Child Interview model. Poor quality video recordings were highlighted in the Evidence and Procedure Review (2015 & 2017) as an area needing significant improvement to ensure justice for children.
The Bairns Hoose uses three high quality fixed cameras discreetly located in ceilings and one zoom camera. There are advantages in having zoom cameras however, there can be challenges with the software they require on laptops. In liaison with Police Scotland, the decision was made to install three fixed cameras and one camera with zoom function with the agreement that if in future four zoom cameras become the approved specification for recording, the equipment can be upgraded.

IT Requirements
It is important to gain an accurate understanding of which multiagency partners will be working out of the Bairns Hoose, initially and in the future, as this influenced the technical design requirements and dictated the tasks which followed. Different partners had different IT requirements:
- Child interview team (made up of Police Scotland and four local authorities are an eight person team), conducting interviews and using the observation room and welcome areas.
- Children First recovery team.
- Scottish Courts and Tribunals Service (SCTS) , using the live link in justice suite.
- eHealth , future proofing for health room.
- Guest internet browsing.
Key IT Questions to consider
- What is your Internet availability in the proposed Bairns Hoose?
Consider the availability of circuits and bandwidth with suppliers, planning for a primary and backup circuit for resilience. - What is your structural cabling design?
Consider where external circuits will terminate in the building. Think about where the data cabinet can be located to minimise visual impact and provide ease of access without disturbing visitors. - What are the network requirements for each use case?
Consider data outlets and use of power over ethernet to connect Wi-Fi points to reduce the need for dedicated power outlets. Consider a Wi-Fi survey to ensure connectivity throughout the space. - What office equipment is required for the daily running of the Bairns Hoose?
Consider placement of desktop equipment such as docks and monitors, and a printer. - What support IT documentation is required?
Consider clear, accessible documentation on set up and troubleshooting steps to support all the different IT use cases in Bairns Hoose. This is especially important for recorded interviews and live links to court where the impact of a network outage or faulty equipment will be greatest. It will be necessary to identify where responsibilities lie, expected response times and how and when to escalate issues to partners.